总建筑面积约15万平方米!宝山南大智慧城这幅地块顺利实施出让
2023年04月23日16:33 |
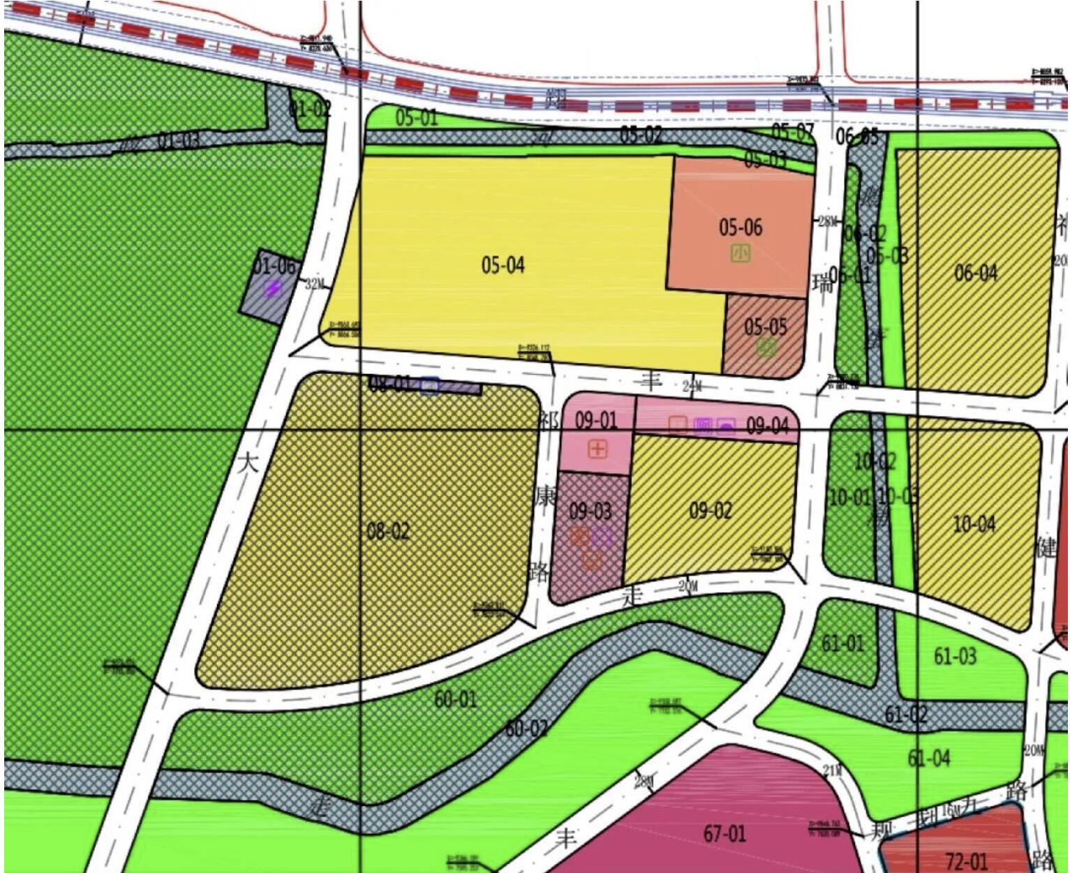
近日,宝山区大场镇W12-1301单元05-04地块顺利实施出让。该地块位于宝山区南大智慧城范围内,四至范围为东至05-05、05-06地块,南至丰皓路、西至大场路、北至05-03公共绿地,出让土地面积5.72391公顷,容积率2.6,计容建筑面积约148822平方米,规划用途为三类住宅组团用地,成交价格488740万元,本次地块出让共有12家优质房企和联合体报名参与竞拍,最终竞得人为上海保利建锦城市发展有限公司。

05-04地块控规图
(来源:上海宝山)
(责编:葛俊俊、轩召强)
分享让更多人看到
- 评论
- 关注






























第一时间为您推送权威资讯
报道全球 传播中国
关注人民网,传播正能量